Two Bedroom Flat | Ground Floor | Private Garden | Available Now | Unfurnished...
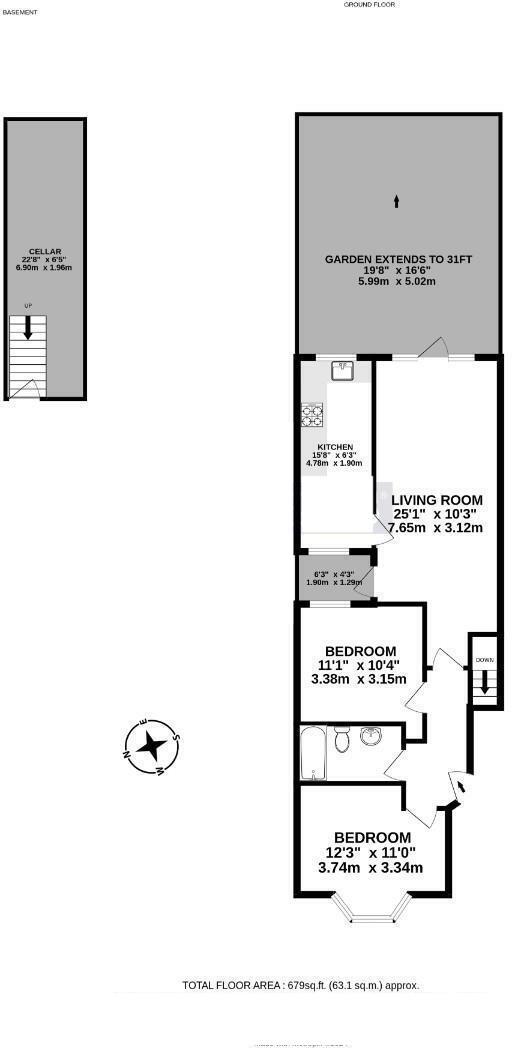
This well placed ground floor flat is just moments from popular local amenities and excellent transport links into The City & West End whilst benefitting from a large private rear garden, and internally comprising of a spacious reception/diner, galley style kitchen, bathroom and two bedrooms.
Available Now, Unfurnished
Reservation Deposit - £576 (forms part of security deposit)
Security Deposit - £2,880
Initial Tenancy Term - 12 Months
Council Tax - Hackney - Band C
 
                                    